Certyfikaty Flandria - System Variant
CERTYFIKACJA EUROPEJSKA

Certyfikat CSTBFlandria Variant

Oficjalny certyfikat konstrukcyjny wydany przez CSTB (Centre Scientifique et Technique du Bâtiment) dla systemu werand aluminiowych Flandria Variant

Certyfikat 133-35-V16
Ważny do 30.03.2028
CSTB Francja

Czym jest certyfikat CSTB?

CSTB (Centre Scientifique et Technique du Bâtiment) to francuski instytut naukowo-techniczny, będący jedną z najbardziej renomowanych instytucji certyfikacyjnych w Europie.

Certyfikat EC01 - Evaluation de la Conceptionpotwierdza zgodność konstrukcji werandy z najwyższymi standardami technicznymi i normami europejskimi.

Co certyfikuje CSTB?

  • Zgodność projektowania węzłów konstrukcyjnych
  • Połączenia elementów między sobą
  • Warunki montażu na konstrukcjach nośnych
  • Wydajność wodoszczelności dachu
  • Parametry A*E*V* (powietrze, woda, wiatr)

Dane certyfikatu

Numer certyfikatu
133-35-V16
Data wydania
27 marca 2023
Ważność
Do 30 marca 2028
Producent
FLANDRIA, Francja
System
Werandy aluminiowe VARIANT
Organ certyfikujący
CSTB - Centre Scientifique et Technique du Bâtiment

Certyfikat można zweryfikować na oficjalnej stronie CSTB:

evaluation.cstb.fr

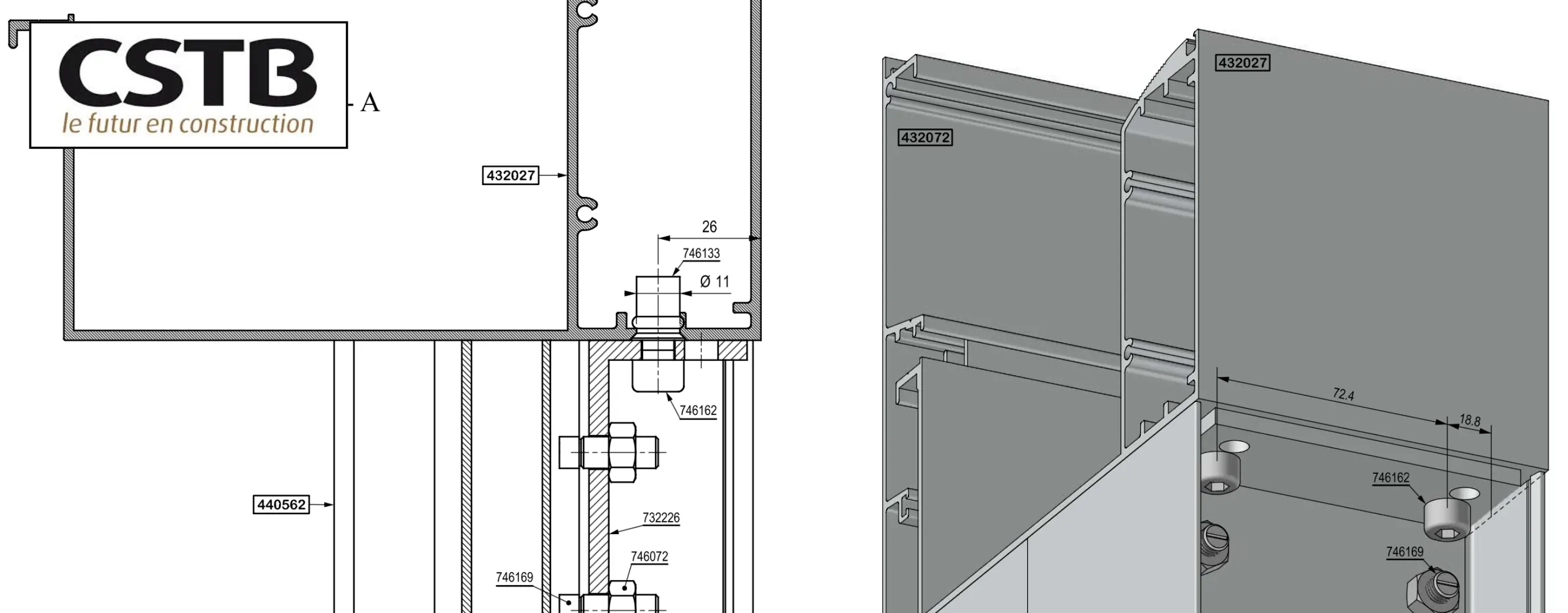
Specyfikacja techniczna systemu Variant

Pełna dokumentacja techniczna certyfikowanego systemu werand aluminiowych

Konfiguracje konstrukcyjne

  • Toitures multi-pentes (wielospadowe)
  • Avec noue (z koszami)
  • Avec arêtier (z kalenicami)
  • Systemy rayonnant (promieniowe)

Parametry nachylenia

  • Zakres: od 5° do 35°
  • Optymalne odprowadzanie wody
  • Zgodność z Eurokodami
  • Obliczenia obciążenia śniegiem

Profile RPT

  • Certyfikat QB49
  • Rupture de pont thermique
  • Norma NF P24-351
  • Qualicoat & Seaside

Remplissages (oszklenie)

  • Grubość: 25-68 mm
  • Certyfikacja CEKAL
  • Verre feuilleté (szkło laminowane)
  • Norma NF EN ISO 12543-2

Wymiary maksymalne

  • Okno stałe: 2,25m × 1,50m
  • 2 skrzydła: do 1,80m × 2,40m
  • Z wzmocnieniem: 2,25m × 3,20m
  • Condamnation LA CROISEE DS

Uszczelnienia

  • EPDM (Flevo Rubber Extrusion)
  • Butyl (Castelein CS DS 800)
  • Mousse imprégnée (Illmod 600)
  • Mastic DARFIX MS40 / SILORDO

Normy i standardy europejskie

System Flandria Variant spełnia najwyższe wymagania norm europejskich

Normy konstrukcyjne

  • NF EN 1991-1-3/NA

    Eurokod 1 - Obciążenia śniegiem

  • NF EN 1991-1-4

    Eurokod 1 - Działanie wiatru

  • NF EN 14024

    Profile aluminiowe z RPT

  • P 08-302

    Bezpieczeństwo przed upadkiem

Normy materiałowe i jakościowe

  • NF P24-351

    Wykończenie powierzchni aluminium

  • NF EN ISO 12543-2

    Szkło laminowane (verre feuilleté)

  • NF EN 13659

    Żaluzje i rolety zewnętrzne

  • NF DTU 39 P3

    Montaż i wykończenie

Certyfikaty dodatkowe

System Flandria Variant posiada również następujące certyfikaty i atesty:

  • ISO 9001:2015 - System Zarządzania Jakością
  • Qualicoat - Powłoki aluminiowe
  • Seaside - Odporność na środowisko morskie
  • CEKAL - Certyfikacja szyb zespolonych

Pobierz pełną dokumentację techniczną

Certyfikat CSTB 133-35-V16 w formacie PDF (44 strony) - pełna specyfikacja techniczna, rysunki konstrukcyjne, normy i atesty.

Pobierz certyfikat PDF (5.0 MB)
Oficjalny dokument CSTB
MATERIAŁY EDUKACYJNE

Poznaj certyfikat CSTB bliżej

Obejrzyj materiał wideo i posłuchaj wyjaśnienia znaczenia certyfikacji

Dekodowanie certyfikatu

Obejrzyj film wyjaśniający kluczowe elementy certyfikatu CSTB i ich znaczenie dla bezpieczeństwa konstrukcji.

Czas trwania: ~3 minuty | Format: MP4

Certyfikat CSTB jako dowód bezpieczeństwa

Posłuchaj wyjaśnienia, dlaczego certyfikat CSTB jest kluczowym dowodem bezpieczeństwa systemu werand Variant.

Format: M4A (AAC) | Idealne do odsłuchania w drodze

Kluczowe informacje

Dowiedz się, jak certyfikat CSTB wpływa na bezpieczeństwo Twojej inwestycji i co potwierdza ten dokument.

NAJCZĘŚCIEJ ZADAWANE PYTANIA

Pytania o certyfikat CSTB

Odpowiadamy na najważniejsze pytania dotyczące certyfikacji

Co oznacza certyfikat CSTB dla kupującego?

Certyfikat CSTB to gwarancja jakości i bezpieczeństwa potwierdzona przez niezależny instytut francuski. Oznacza to, że konstrukcja przeszła rygorystyczne testy i spełnia najwyższe normy europejskie. Dla Ciebie to pewność, że inwestujesz w produkt zgodny z prawem budowlanym, bezpieczny konstrukcyjnie i trwały przez wiele lat.

Czy certyfikat CSTB jest wymagany w Polsce?

W Polsce certyfikat CSTB nie jest formalnie wymagany, ale stanowi bardzo mocny argument przy uzyskiwaniu pozwoleń na budowę i zgłoszeniach. Architekt i urząd budowlany otrzymują gotową dokumentację konstrukcyjną z obliczeniami wg Eurokodów, co znacznie przyspiesza proces formalny. To także zabezpieczenie w przypadku kontroli budowlanych - masz pewność, że konstrukcja spełnia wszystkie normy.

Jak długo ważny jest certyfikat?

Certyfikat 133-35-V16 został wydany 27 marca 2023 i jest ważny do 30 marca 2028 (5 lat). Po tym okresie Flandria przeprowadza recertyfikację - aktualizację zgodną z najnowszymi normami. Dla użytkownika oznacza to, że system jest stale monitorowany i ulepszany zgodnie z rozwojem technologii i przepisów.

Co wyróżnia system Flandria Variant od innych?

System Variant wyróżnia się trzema kluczowymi cechami:

  • Certyfikacja CSTB - potwierdzona zgodność z normami europejskimi
  • Profile RPT z certyfikatem QB49 - najwyższa izolacyjność termiczna
  • Elastyczność projektowa - możliwość tworzenia wielospadowych konstrukcji z koszami i kalenicami

Czy VERANDANA może dostarczyć certyfikat do projektu budowlanego?

Tak! Jako ekskluzywny partner Flandria w Polsce, przekazujemy Ci pełną dokumentację techniczną z certyfikatem CSTB w języku francuskim oraz tłumaczeniem kluczowych parametrów. Dodatkowo przygotowujemy obliczenia konstrukcyjne dla Twojej konkretnej konfiguracji zgodnie z obciążeniami dla Twojej lokalizacji (wiatr, śnieg). Twój architekt otrzymuje kompletny pakiet dokumentów technicznych do projektu budowlanego.

Jakie gwarancje daje certyfikowany system?

System Flandria Variant objęty jest 10-letnią gwarancją producenta na profile aluminiowe i komponenty konstrukcyjne. Dodatkowo gwarantujemy:

  • Odporność korozyjną zgodnie z Qualicoat i Seaside
  • Szczelność i wodoszczelność potwierdzoną testami
  • Bezpieczeństwo konstrukcyjne wg obliczeń statycznych

Certyfikowana jakość dla Twojego domu

System Flandria Variant z certyfikatem CSTB to gwarancja bezpieczeństwa i trwałości. Otrzymaj bezpłatną wycenę z wizualizacją 3D w 24 godziny.

Pracujemy: Pon-Pt 8:00-18:00, Sob 9:00-14:00